Église Saint-Léger de Cheylade dans le Cantal

Patrimoine classé Patrimoine religieux Eglise romane

Église Saint-Léger de Cheylade

  • D49
  • 15400 Cheylade
Église Saint-Léger de Cheylade
Église Saint-Léger de Cheylade
Église Saint-Léger de Cheylade
Église Saint-Léger de Cheylade
Église Saint-Léger de Cheylade
Église Saint-Léger de Cheylade
Église Saint-Léger de Cheylade
Église Saint-Léger de Cheylade
Église Saint-Léger de Cheylade
Église Saint-Léger de Cheylade
Église Saint-Léger de Cheylade
Église Saint-Léger de Cheylade
Église Saint-Léger de Cheylade
Église Saint-Léger de Cheylade
Église Saint-Léger de Cheylade
Église Saint-Léger de Cheylade
Église Saint-Léger de Cheylade
Église Saint-Léger de Cheylade
Église Saint-Léger de Cheylade
Église Saint-Léger de Cheylade
Église Saint-Léger de Cheylade
Église Saint-Léger de Cheylade
Église Saint-Léger de Cheylade
Église Saint-Léger de Cheylade
Église Saint-Léger de Cheylade
Église Saint-Léger de Cheylade
Église Saint-Léger de Cheylade
Église Saint-Léger de Cheylade
Église Saint-Léger de Cheylade
Église Saint-Léger de Cheylade
Crédit photo : Pline - Sous licence Creative Commons
Propriété de la commune

Frise chronologique

Moyen Âge central
Bas Moyen Âge
Renaissance
Temps modernes
Révolution/Empire
XIXe siècle
Époque contemporaine
1200
1300
1400
1500
1600
1700
2000
XIIe siècle
Construction romane initiale
XVe siècle
Restauration post-guerre
XVIe siècle
Agrandissement et porche
Aujourd'hui
Aujourd'hui

Patrimoine classé

Eglise (cad. C 432) : classement par arrêté du 11 février 1963

Personnages clés

Pierre Levesville Architecte responsable des travaux du XVIIe siècle
Guy François Peintre attribué de l'Adoration des bergers

Origine et histoire de l'Église Saint-Léger

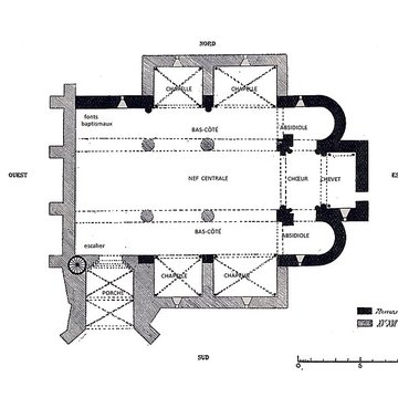
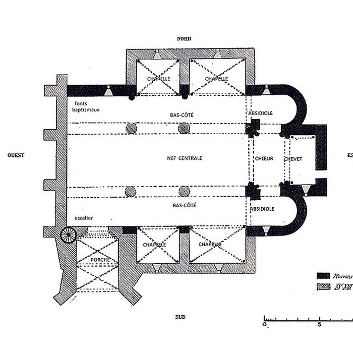
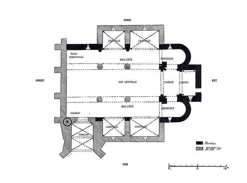
L’église Saint-Léger de Cheylade (Cantal) est un édifice roman d’origine médiévale, dédié à saint Léger, construit en pierre volcanique et couvert de lauzes. De l’ancienne église romane, qui comprenait une nef et deux bas-côtés voûtés, subsistent essentiellement l’abside terminée par un mur droit, une travée de chœur et deux absidioles en cul-de-four. Quoique remaniée à plusieurs reprises entre le XVe et le XVIIe siècle et retouchée au XIXe siècle, l’ossature extérieure actuelle reflète principalement les restaurations du XVIIe siècle. Ravagée par des bandes armées au cours de la guerre de Cent Ans, l’église vit s’effondrer les voûtes de la nef et des collatéraux, puis être réparée et agrandie aux XVe et XVIe siècles avec la construction de chapelles latérales et d’un porche de deux travées qui supporte le clocher. Au début du XVIIe siècle, des travaux dirigés par l’architecte Pierre Levesville ont notamment élevé quatre piliers séparant la nef des collatéraux et remis en état la toiture ; ces campagnes ont abouti au lambris de sapin qui couvre aujourd’hui les voûtes. Les toits furent incendiés lors des guerres de Religion, puis les nefs furent couvertes, au XVIIIe siècle, d’une voûte en bois surbaissée divisée en caissons par des moulures rapportées. On compte 1 360 caissons peints sur les trois voûtes — 560 pour la nef centrale et 400 pour chacun des collatéraux — ornés de motifs polychromes naïfs représentant fleurs, animaux fantastiques, angelots et armoiries locales ; ces peintures ont valu à l’église son classement au titre des monuments historiques en 1963. Dans l’abside romane voûtée en berceau subsistent quatre colonnettes à chapiteaux d’allure très archaïque, tandis que divers éléments plus anciens — colonnes réemployées, colonnettes et chapiteaux d’époque carolingienne — témoignent de remploi et de continuités sur le site. À l’extérieur, l’édifice à silhouette trapue domine la vallée ; le porche sud, avec ses étroits bancs de pierre et son écusson ITIS, ouvre sur un portail à cinq voussures. L’intérieur, sobre et rustique, offre une nef à trois travées d’égale hauteur éclairée par de petites ouvertures et un sol dallé provenant du réfectoire du grand séminaire de Saint‑Flour. L’arc triomphal du chœur repose sur des colonnes aux chapiteaux sculptés de feuilles d’acanthe et d’un motif dit des « sirènes-poissons », et les arcatures reliant le chœur aux absidioles s’appuient sur de petites colonnes aux chapiteaux à entrelacs. La fausse tour sud contient l’escalier desservant la tribune et le clocher ; la tour opposée abrite les fonts baptismaux. Le mobilier est abondant : parmi les pièces classées figurent un bénitier en granit du XVe siècle, des fonts baptismaux en trachyte restaurés, un christ en bois de la fin du XIVe siècle et une statue de saint Léger en chêne du XVe siècle dont les bras sont remaniés. L’église compte sept autels ; le maître-autel actuel, en pierre locale, date du milieu du XXe siècle, les autels des absidioles remontent au XVIIIe siècle et plusieurs retables et tableaux datent des XVIIe au XIXe siècles, dont une Adoration des bergers attribuée à Guy François et classée en 1979. Les caissons peints, réalisés dans une gamme de bleus, noirs et ocres, réunissent un bestiaire mêlant animaux domestiques, oiseaux, créatures fantastiques et motifs végétaux tels que fleurs, œillets et grappes de raisin, tous porteurs d’un riche vocabulaire symbolique chrétien. On trouve aussi des armoiries, des tabernacles, des cloches, des anges et des cœurs enflammés, motifs dont l’interprétation varie entre dévotion, morale et allégorie. Les spécialistes notent que la composition obéit souvent à un principe de symétrie et que, malgré leur facture naïve, les peintures empruntent à des formes de l’imagerie médiévale et à une iconographie religieuse codifiée. Propriété paroissiale relevant anciennement de l’évêché de Clermont, l’église dépend depuis la Révolution du diocèse de Saint‑Flour ; elle reste un témoignage singulier de l’art religieux rural en Haute-Auvergne, en particulier par son plafond lambrissé peint.

Liens externes