Logo Musée du Patrimoine

Tout le patrimoine français classé par régions, départements et villes

Maison à Paris 1er dans Paris

Maison

    1 Rue du Regard
    75006 Paris 6e Arrondissement
Propriété privée
Maison
Maison
Maison
Maison
Maison
Maison
Maison
Maison
Maison
Maison
Maison
Maison
Maison
Maison
Maison
Maison
Maison
Maison
Maison
Maison
Maison
Maison
Maison
Maison
Maison
Crédit photo : Oderik - Sous licence Creative Commons

Frise chronologique

Temps modernes
Révolution/Empire
XIXe siècle
Époque contemporaine
1700
1800
1900
2000
1696
Acquisition du terrain
1719
Plans initiaux
1737
Achèvement de la construction
1791
Vente à la famille Ternisien
1822
Acquisition par Joseph Récamier
1907
Percement du boulevard Raspail
18 février 1926
Classement monument historique
Aujourd'hui
Aujourd'hui

Patrimoine classé

Le portail sur la rue (vantaux compris) et la façade sur le boulevard : inscription par arrêté du 18 février 1926

Personnages clés

Comtesse de Verrue - Commanditaire initiale Fille du duc de Luynes, destinataire originel.
Victor-Thierry Dailly - Architecte Auteur des plans initiaux en 1719.
Brice Le Chauve - Architecte Acheva la construction en 1737.
Thomas de Dreux-Brézé - Locataire puis propriétaire Grand Maître des Cérémonies de France.
Joseph Récamier - Propriétaire en 1822 Médecin célèbre, ancêtre des actuels propriétaires.

Origine et histoire

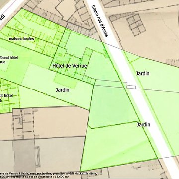
L’hôtel de Dreux-Brézé, aussi appelé Petit hôtel de Verrue, est un hôtel particulier construit au XVIIIe siècle dans le 6e arrondissement de Paris, au 1 rue du Regard. Il fut édifié sur un terrain acquis en 1696 par la communauté des Carmes de la rue de Vaugirard, dans le cadre d’une vaste opération immobilière prévoyant cinq hôtels particuliers. Les plans initiaux, commandés en 1719 à l’architecte Victor-Thierry Dailly, furent partiellement réalisés avant d’être interrompus par la banqueroute de Law. La construction ne s’acheva qu’en 1737, sous la direction de Brice Le Chauve, qui modifia légèrement les plans originaux.

À l’origine, l’hôtel était destiné à la comtesse de Verrue, fille du duc de Luynes et d’Anne de Rohan, mais celle-ci décéda en 1736 avant son achèvement. Les Carmes louèrent alors le Petit hôtel de Verrue à Thomas de Dreux-Brézé (1677-1749), Grand Maître des Cérémonies de France. Ses descendants conservèrent les lieux jusqu’à la Révolution. En 1791, la famille Ternisien acquit l’hôtel auprès de la Commune de Paris, avant qu’il ne soit racheté en 1822 par le docteur Joseph Récamier (1774-1852). L’hôtel reste aujourd’hui la propriété des descendants de ce dernier.

Le percement du boulevard Raspail en 1907 transforma radicalement l’hôtel : son jardin fut détruit pour laisser place à la nouvelle voie, et l’ancienne façade sur jardin se retrouva en biais sur le boulevard. Contrairement à d’autres hôtels voisins, comme celui de Verrue, entièrement démoli, le corps de logis fut préservé. Des blocs de pierre de raccordement, visibles aux extrémités des immeubles mitoyens, suggèrent une intention initiale de reconstruction jamais aboutie. Depuis 1926, le portail sur rue et la façade sur boulevard sont inscrits aux monuments historiques.

L’hôtel de Dreux-Brézé illustre ainsi l’évolution urbaine de Paris, entre préservation du patrimoine aristocratique et adaptations imposées par les grands travaux haussmanniens. Son histoire reflète aussi les bouleversements politiques et sociaux, de l’Ancien Régime à la Révolution, en passant par les spéculations immobilières du XVIIIe siècle.

Liens externes